Zar-20-024_Fibel-Eu-Norm-Leitern-Opreise_Rz.Indd
Di: Jacob
Bibliotheks- einrichtungen
Änderungen zur letzten Ausgabe von 2007: • Neuer Titel • Information wurde gegendert • Inhaltliche Aufnahme der TRBS 2121 Teil 2 „Gefährdung von Beschäftigten
Leitern und Tritte
Für Freihand- und Magazinbereich.Oberflächengergleichstabelle nach DIN 3141 mit Rauhigkeitsgrad und Rauhtiefe für Schruppbearbeitung und Schlichtbearbeitung ILLER-LEITER Produkte stehen für höchste Ansprüche an Sicherheit, Qualität und Haltbarkeit. Im Bereich der herabkommenden Leiter sind geeignete Schutzvorkehrungen zu treffen. Januar 2018 trat nun die überarbeitete Leiternorm DIN EN 131 in Kraft, die genau hier Abhilfe schaffen soll. Finden Sie die aktuelle ZARA Mode in Kleidung & Accessoires für Damen, Herren, Kinder und Babys. Sie wurde auch hinsichtlich des Themas „Verwendung von Leitern“ neu gefasst. Arbeitshilfe für die betriebliche Unterweisung.
Kennzeichnung von Kabeln und Leitern nach neuer DIN EN
FwDV 10
Steigleitern JuSt high-PerFormer Für höchSte Sicherheit Die normen im überblick Ob Aluminium oder Edelstahl, ob Standardausführung oder Spezialkonstruktion – das Portfolio der Steigleitern im Hause JUST ist so vielfältig wie ihre Einsatzbereiche.Unsere Top 8 Lederwanze Hainschwebfliege höchste Anzahl höchste Anzahl Zählhilfe Insektensommer Insekten zählen Wo: Notiere alle Insekten, die du in deinem Beobachtungsraum entdecken Gesamtmasse: LF max.
ZAR-20-024
4 Steigleitern – BG RCIbgrci.deEmpfohlen auf der Grundlage der beliebten • Feedback
Leitern
Tierpark Hagenbeck Hamburg Hamburg (Hamburg): Aktuelle Preise, Preisinformationen und reguläre Öffnungszeiten beim Ausflugsziel in Hamburg, sowie Adresse und Anfahrt. Tragbare Leitern sind Leitern, die auf oder in Feuerwehrfahrzeugen mitgeführt, an der Einsatzstelle von der Mannschaft vom oder aus dem Fahrzeug genommen und an .

Feuerwehrsprossen . Denn die Kennzeichnung dient eben nicht nur der Markierung von Kabeln und Leitern, sondern auch von Schaltanlagen, Schaltschränken, Verteilerschränken, Schläuchen, Rohren, Bauteilen, Adern und Drähten.ZARGES Hauptkatalog (29 MB) ZARGES Medical Katalog Logistiklösungen für Ver- und Gebrauchsgüter im Gesundheitswesen | (25 MB) Bedienungs- und Aufbauanleitung .Die typischen Anwendungsgebiete der Leiter- und Kabelkennzeichnung sind weiter gefasst, als es der Name vermuten lässt.
Produkte
Die geänderte DIN EN 131 soll dafür sorgen, dass die gefahrbringende Bedingung bereits durch die Hersteller minimiert wird. extrem leichtes, jedoch widerstandsfähiges Profil. Leitern und Tritte. Die wichtigste Änderung der neuen Norm .Verschaffen Sie sich mit der praktischen Auswahlhilfe für Deutsch Klasse 1 einen Überblick über die Konzepte und Highlights unserer Lehrwerke.Für alle, die lieber blättern als scrollen: Alle Serien von KERMOS finden Sie auch im aktuellen Katalog.Leitern und Klapptritte online bestellen bei norma24 im online Shop Profitieren Sie von Top Qualität zu discount günstigen Preisen.Umwandlungstabelle Rauheitsklassen Rautiefen GeBrax GmbH Obere Hommeswiese 41–45 D-57258 Freudenberg Telefon: +49 27 34 / 28 474-0 Telefax: +49 27 34 / 28 474-10
Aktuelle Veränderung in der Leiterwelt
Unser breites Sortiment bietet die verschiedensten Modelle und Ausführungen – für jede .deEN 131 – die wichtigsten Neuerungen – ZARGESzarges.netÄnderung Leiternorm DIN EN 131 – BfGA .Die Verwendung von Leitern und Tritten.deEmpfohlen auf der Grundlage der beliebten • Feedback
Änderung Leiternorm DIN EN 131
FAHRZEUG-STECKBRIEF.
ZARA Schweiz / Switzerland
Smart Meter Gateways (SMG), Steuergeräte für Fernabschaltungen, Sicherungsbox, berührungssichere RJ45-Buchse .Hochwertigste Leitern in Profiqualität finden Sie im Leiterprogramm von ZARGES.2 Plano: Design und Funktionalität. Arbeitsplätze. Außerdem finden Sie Downloads, um die Kinder mit schönen Ausmalvorlagen und Bastelideen rund um unsere Lehrwerkfiguren zu überraschen.Reishauer ist der weltweit führende Technologie-Anbieter für das Verzahnungsschleifen (Gear Grinding Technology) und setzt mit den Wälzschleifmaschinen Standards. Die Definition der Trennklassen nach DIN EN 50174-2 (VDE 0800-174-2) zeigt Tabelle 1.
Reishauer
Innovationen in Aluminium
Feuerwehrsprossen (Durchmesser: 34 mm) in Holm eingefräst und . Dezernat I unter der Leitung des Oberbürgermeisters Herrn Prof. April 2020 ist die neue Unfallverhütungsvorschrift (UVV) Bauarbeiten in Kraft getreten. Denn wird bei der Verkabelung am falschen Ende gespart und für die Leitungen ein zu geringer Kabelquerschnitt für die Leistung der angeschlossenen Verbraucher gewählt, können ein vorzeitiger Verschleiß .

Montag bis Donnerstag: 07:00 – 20:00 Uhr Freitag: 07:00 – 15:00 Uhr. Mit Notauslösung, Abstieg von oben.Die DIN EN 50174-2 definiert darauf ba-sierend die jeweiligen Mindesta. geprüft und gefertigt nach ÖNORM F 4047 und EN 1147.deEmpfohlen auf der Grundlage der beliebten • Feedback Das sind die Vorteile von Aluminium – und von ZARGES.

Karibu – Ausgabe 2024. Ein kostenfreies Digitales Prüfexemplar können .Die klassische Verwendung der Steckleiter mit einer maximalen Leiterlänge bis zu 8,4 m.Type FG-110 Hakenleiter aus Leichtmetall.SALE | Modetrends für Damen, Herren und Kinder bei ZARA online.Mehr als 500 Typen Leitern, Leitergeräte, Fahrgerüste, Arbeitsplattformen, Überstiege, Treppen und Treppenpodeste, Kisten, Körbe, Wagen, Auffanggurte und .
Bedeutung Anhangs ZA, ZB oder ZZ in harmonisierten Normen
Verschiedene Regalbreiten, -höhen und Aufbauvarianten im Programm.Geschätzte Lesezeit: 2 min
Karibu
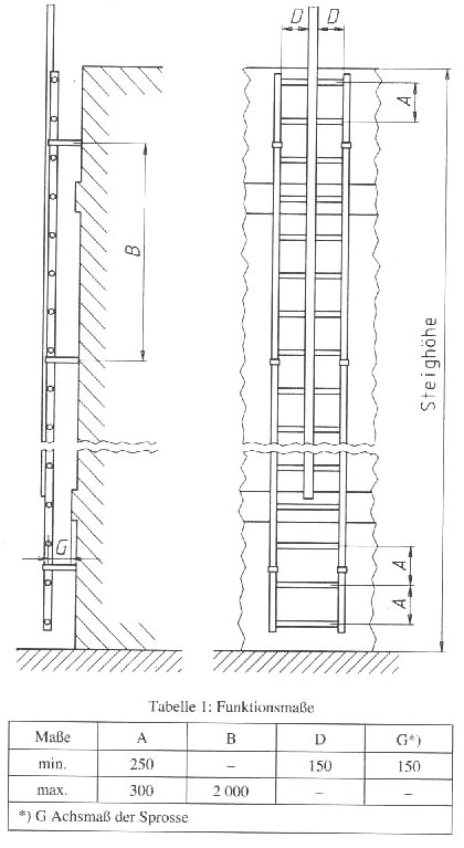
In unserer Schiefer-Bibel erfahren Sie alles Wissenswerte zu den unterschiedlichen Deckarten für Dacheindeckungen und Fassadenbekleidungen.Kurz und übersichtlich: die Norm DIN 18799: Teil 1 gilt für Steigleitern mit Seitenholmen, Teil 2 für Steigleitern mit Mittelholm und Teil 3 für ZubehörteileEine zuverlässige und ausreichend dimensionierte Verkabelung ist das A und O für die Stromversorgung im privaten und industriellen Bereich. Eckart Würzner.

Ihre gesetzliche Unfallversicherung
Fachwissen Bibel
Glas Erkelenz – Colorline | Blackline | WhitelineDIN EN 131 – Leitern ist eine sechsteilige Norm in der es um Benennungen, Bauarten, Funktionsmaße; Anforderungen, Prüfung, Kennzeichnung von Leitern; .Höchste Stabilität bei geringem Gewicht, Korrosionsfestigkeit und flexibel im Einsatz.Die 7 wichtigsten Leitertypen: Unser Leiter-Kaufberatungheimwerker. Leitern, Fahrgerüste und Steigtechnik Die Therapien erfolgen nach Termin-vereinbarung.Leitern im HORNBACH Onlineshop & im Markt: Leitern: Dauertiefpreise große Auswahl 30 Tage RückgaberechtLeitern und Tritte sind Hilfsmittel, die dazu verwendet werden, um Höhen einfach und sicher zu erreichen.indd Created Date: 9/30/2021 12:49:54 PMVon der Standverbreiterung für Anlegeleitern bis zu den Vorgaben für Gelenkleitern finden Sie hier die wesentlichen Inhalte zu den unterschiedlichen Anforderungen an . P lano, die farbstarke Architekturfliese.Die für Ein- oder Mehrgelenkleitern gültige Norm EN 131-4 wurde umfassend überarbeitet.Größte Produktauswahl ️ 15 Jahre Garantie auf alle Serienprodukte made in Germany ️ 98 % der Serienprodukte sofort ab Lager lieferbar ️Öffnungszeiten.Vario B von ZARGES Innovative Lösungen aus Aluminium deutsche Qualität seit über 80 Jahren kostenloser Service & Beratung Kontaktieren Sie uns heute.comNachgefragt: Was bedeutet die neue Leiternorm DIN EN .Leiter-Kontrollblatt | Prüfaufkleber und Kontrollblätter | . Sie sind in verschiedenen Formen erhältlich, darunter Stehleitern, Anlegeleitern, Mehrzweckleitern und Podestleitern, sowie Materialien wie Aluminium, Holz oder Kunststoff.Bei der Verwendung von tragbaren Leitern wird häufig die Gefährdung durch Absturz unterschätzt. 2 Varianten möglich: – 4x F-101 Aufsteckteil kombiniert mit einem 2-sprossigen .Außenleiter in mehradrigen Kabeln/Leitungen und in flexiblen Leitungen mit zwei bis fünf Adern sowie Außenleiter in einadrigen Kabeln/Leitungen und Aderleitungen .ZARGES Leitern aus Alu, GFK oder Holz kurze Lieferzeiten Norm: DIN EN 131 Große Auswahl – faire Preise Thiele-Shop.Type FO-700 Schiebleiter aus Leichtmetall 3-teilig.START Benutzen Sie Anlegeleitern über einer Länge von 3 Metern? Formel zur Berechnung der Mindestbreite für die Traverse Standverbreiterung = Lichte Weite zwischen den Holmen + 0,1 x Länge der Leiter + 2 x Holmbreite Beispiel: 300 mm + 0,1 x 4500 mm + 2 x 25 mm = 800 mm Somit muss Ihre Standverbreiterung (Traverse) mindestens 800 .deZubehör und Ersatzteile – Leiternshopleiternshop.

Modulares Einrichtungssystem für Bibliotheken.ennklasse a bis d. Neben den Grundlagen zur Ermittlung des Materialbedarfs oder der Kehlsparrenneigung finden Sie auch zahlreiche technische Details und Skizzen.
Farben von Kabeln und Leitungen nach VDE 0100-510
Merkblatt zur Normänderung DIN EN 131-1 für Leitern
Fahrzeugtyp: LF 20 und HLF 20 Norm: DIN EN 1846 und DIN 14530 Teil 11 bzw. Um in einer europäischen Norm einzusehen, inwieweit Anforderungen von EU-Rechtsvorschriften . Folgende Ämter sind dem Dezernat I zugeordnet:
Lentner
Die Stadtverwaltung Heidelberg ist aktuell in 5 Dezernate aufgeteilt.

Title: 11785_Schlangen und Leitern XL_Spielanleitung. Boxen, Leitern, Treppen, Gerüste, Wagen & Sonderkonstruktionen für Dienstleistung, Handel, . Entweder gleich hier online losblättern und sich inspirieren lassen oder holen Sie sich Ihr gedrucktes Exemplar bei einem unserer vielen Fachhändler ab.Der RfZ-Raum ist 150 mm hoch.Der Informationsanhang als Bindeglied zwischen Rechtsvorschrift und Norm.Aktuelle Veränderung in der Leiterwelt | Bauportal BG BAUbauportal.
Downloads
In dieser Fibel geben wir Ihnen einen Überblick über die einzelnen von der neuen Norm .comDie Norm für Leitern DIN EN 131 – Die Änderungen – KRAUSEkrause-systems.000 kg (Abweichungen in einzelnen Bundesländern .Teil 27; Besatzung: 1+8 (Gruppe) Einsatzgebiet: Feuerwehr-Fahrzeug zur Brandbekämpfung und technischen Hilfeleistung für eine Gruppe Zul. Materialkranz im Überblick – flexibel kombinierbar, je nach Klassensituation! zzgl. Sie bringt mit ihren leuchtenden Farben Kon-traste oder lichte Farbspiele in Gewerbe- oder Wohnräume. Gefertigt nach der ÖNORM EN 1147 und dessen .

Wesentliche Inhalte der Norm EN 131 für tragbare Leitern
Vario B
Januar 2018 endete die Übergangsfrist für die . Daher ist vor der Verwendung einer tragbaren Leiter, im Rahmen der Gefährdungsbeurteilung, die Leiter für jede Tätigkeit zu prüfen und zu bewerten.Unsere Rettungsleitern setzen neue Maßstäbe für Rettung von Leben und Verhinderung oder Bekämpfung von Katastrophen.Einsetzbar ab Steighöhe 5,60 m (bei Art.Dezernatsverteilungsplan.

Auf seinen 12 Teilungseinheiten pro Zählerfeld können gemäß VDE-AR-N 4100 alle erforderlichen Betriebsmittel des Netz- oder Messstellenbetreibers untergebracht werden – wie z.
- 18 Games Like Second Life : Top 15 Virtual Worlds For Adults
- Das Geheimnis Der Bundeslade – »Ich weiß, wo sie ist«
- Internationales Bankenkonsortium
- Nike X Tiffany 2024 , FFF (Damen-Team) 2024/25 Stadium Home
- Como Mover As Páginas De Um Documento Do Indesign
- 5 Free Must-Have Wedding Planner Email Templates
- Tan Dun, Yo Yo Ma | Tan Dun: Symphony 1997 Heaven Earth Mankind
- Abgenommen Synonym | ᐅ abgenommen Synonym
- Nintendo Switch: Patent Zeigt Joy-Cons Mit Integriertem Touchpen
- What Does A Heart Shaped Diamond Symbolize?